Waldaschaff "Ebets-Rodwiese"
Gemeinde
Die Gemeinde Waldaschaff, zum Landkreis Aschaffenburg gehörig, ist eine im 12. Jahrhundert gegründete Gemeinde mit rund 4.000 Einwohnern.
Lage/Verkehrsanbindung
Die Gemeinde Waldaschaff ist idyllisch im Naturpark Spessart gelegen. Mit dem Autobahnanschluss "Bessenbach/Waldaschaff" verfügt die Gemeinde über hervorragende Anbindung an das Autobahnnetz. In nur rund 35 Minuten ist der Flughafen Rhein-Main zu erreichen.
Baugebiet
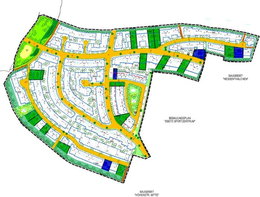
Das Baugebiet "Ebets-Rodwiese" liegt idyllisch über der alten Ortslage, im Norden von Waldaschaff. Westlich grenzt freies Feld, nördlich das weitläufige Waldgebiet an das Baugebiet. Zufahrtsmöglichkeiten bestehen sowohl über Höhenstraße als auch über die Fuggerstraße.
Die auf der gegenüberliegenden Talseite verlaufende A3 wird im Zuge des sechsspurigen Ausbaues mitsamt der Brückenanlage verlegt, was zu einer deutlichen Lärmentlastung der Gemeinde führen wird.
Wirtschaft/Infrastruktur
Waldaschaff verfügt über eine gute Infrastruktur. Neben allen Einrichtungen zur Versorgung mit Dingen des täglichen Bedarfes, verfügt die Gemeinde über zwei Kindergärten, eine Grundschule, ein Bürgerhaus und verschiedene Sportanlagen.







