Neuberg - Ravolzhausen "Am Limes III"
Gemeinde
Die Gemeinde Neuberg, Main-Kinzig-Kreis, mit ca. 5.800 Einwohnern besteht aus den Ortsteilen Ravolzhausen und Rüdigheim.
Lage/Verkehrsanbindung
Neuberg liegt unweit des Rhein-Main-Ballungsgebietes und grenzt im Norden an die Ausläufer des Vogelsberges. Die Höhenlage der Gemeinde liegt zwischen 122 m NN im Süden und 196 m NN im Norden. Die Entfernung zu den nächsten größeren Städten beträgt ca. 10 km nach Hanau und ca. 30 km nach Frankfurt am Main. Autobahnanschluss A45 (Anschlussstelle "Langenselbold - West"), z. Zt. nur Auffahrt in nördlicher und Abfahrt aus südlicher Richtung möglich. Autobahnanschluss A66 (Anschlussstelle "Langenselbolder Dreieck") von dort über A45 Richtung Gießen/Dortmund zur Anschlussstelle "Langenselbold - West". ÖPNV: Bahnhöfe in Langenselbold und Bruchköbel (jeweils ca. 6 km); Linienbusverbindungen nach Hanau.
Baugebiet
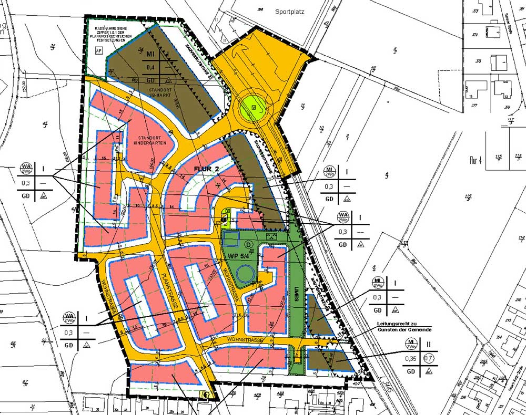
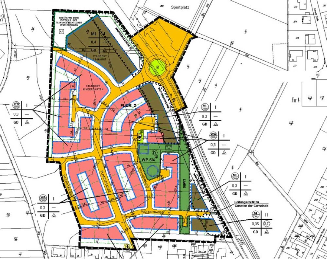
Das Baugebiet "Limes III" liegt zwischen den Ortsteilen Rüdigheim und Ravolzhausen. Hier entstand Bauland auf einer Fläche von rund 5,35 ha. Das Gebiet wird im Osten durch die Landesstraße L 3445 begrenzt. Im Süden schließt sich die bestehende Ortsrandbebauung aus einzelstehenden Wohnhäusern an. Vorgesehen sind rund 50 bis 60 Bauplätze, ein Kindergarten sowie ein Lebensmittelmarkt im nördlichen Bereich des Baugebietes.
Wirtschaft/Infrastruktur
Neuberg verfügt über alle Geschäfte, die zur Deckung des täglichen Bedarfes benötigt werden. In der Gemeinde stehen 3 Kindergärten und eine Grundschule zur Verfügung.











