Neuberg "Auf der Weingartsweide II"
Gemeinde
Die Gemeinde Neuberg, Main-Kinzig-Kreis, mit ca. 5.800 Einwohnern besteht aus den Ortsteilen Ravolzhausen und Rüdigheim.
Lage/Verkehrsanbindung
Neuberg liegt unweit des Rhein-Main-Ballungsgebietes und grenzt im Norden an die Ausläufer des Vogelsberges. Die Höhenlage der Gemeinde liegt zwischen 122 m NN im Süden und 196 m NN im Norden. Die Entfernung zu den nächsten größeren Städten beträgt ca. 10 km nach Hanau und ca. 30 km nach Frankfurt am Main. Autobahnanschluss A45 (Anschlussstelle "Langenselbold - West"), z. Zt. nur Auffahrt in nördlicher und Abfahrt aus südlicher Richtung möglich. Autobahnanschluss A66 (Anschlussstelle "Langenselbolder Dreieck") von dort über A45 Richtung Gießen/Dortmund zur Anschlussstelle "Langenselbold - West". ÖPNV: Bahnhöfe in Langenselbold und Bruchköbel (jeweils ca. 6 km); Linienbusverbindungen nach Hanau.
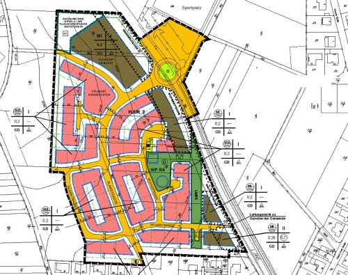
Baugebiet
Das geplante Wohnbaugebiet liegt im Neuberger Ortsteil Ravolzhausen zwischen alter Bebauung und der Erich-Simdorn-Schule.
Es entstehen ca. 39 Grundstücke mit einer Größe ab 400m². Der Verkaufspreis liegt voraussichtlich bei ca.300 €/m². Bis auf wenige Grundstücke ist der Verkauf abgeschlossen.
Seit dem Sommer 2019 wird das geplante Baugebiet archäologisch untersucht. Die Erschließung, d.h. der Bau von Kanal, Straße etc., begann nach Abschluss der archäologischen Arbeiten im Frühjahr 2020 und wird voraussichtlich Ende des Jahres abgeschlossen sein.






