Limeshain - Rommelshausen "Försterahl"
Gemeinde
Die Gemeinde Limeshain besteht aus den Ortsteilen Rommelhausen, Hainchen und Himbach. Bürgermeister Adolf Ludwig lenkt die Geschicke der am südöstlichen Rand des Wetteraukreises gelegenen Gemeinde und seiner rund 5.700 Einwohner.
Lage/Verkehrsanbindung
Die Gemeinde Limeshain liegt im Südwesten des Wetteraukreises an der Grenze zum Main-Kinzig-Kreis, am Übergang des Ronneburger Hügellandes zur südlichen Wetterau verkehrsgünstig nahe der A45. Mit dem Bau der Autobahnabfahrt Hammersbach, die 3,5 km nördlich des Gemeindezentrums liegt, wurde Limeshain noch etwas näher an die Ballungsräume Hanau (ca. 20 km) und Frankfurt/Rhein-Main (ca. 30 km) „gerückt“. Im übrigen liegt die Gemeinde an den Landesstraßen L 3189 und L 3191, die sich genau im Gemeindezentrum kreuzen.
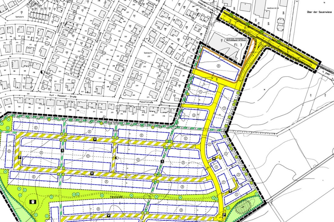
Baugebiet
Das Baugebiet "Försterahl" entsteht am südöstlichen Ortsrand von Rommelhausen (2.600 Einwohner). Das ruhige und zentral gelegene Gebiet schließt sich zur einen Seite an die bestehende Bebauung und zur anderen an das angrenzende Waldgebiet an. Insgesamt wird hier in mehreren Bauabschnitten eine Fläche von ca. 15 ha zur Bebauung in Mischgebietsflächen und einer mehrstufigen Reihe von Wohnbaugrundstücken angeboten. Die Gemeinde legt großen Wert darauf, das Baugebiet nach modernen ökologischen Gesichtspunkten auszugestalten. Hierzu gehören neben entsprechenden Vorgaben im Bebauungsplan auch eine Beratung und Begleitung der Bauherren vor, während und nach dem Hausbau. Besonders auffällig an dem Bebauungsplan ist der erhebliche Anteil von Grünflächen, sowohl im Übergang zum angrenzenden Waldgebiet, als auch innerhalb des Baugebietes. Der erste Bauabschnitt schließt sich direkt an die bestehende Bebauung an und besteht aus einigen Mischgebietsflächen und einer mehrstufigen Reihe von Wohnbaugrundstücken. Dieser erste Abschnitt ist mittlerweile zu großen Teilen bebaut. Die Preise für ein erschlossenes Grundstück liegen zwischen 120 €/m² und 145 €/m² im Mischgebiet sowie 155 €/m² und 180 €/m² im Wohnbaugebiet(für Familien mit Kindern gibt es einen Preisnachlass).
Wirtschaft/Infrastruktur
In Limeshain findet man alle Geschäfte für den täglichen Bedarf. Im nahen Altenstadt oder in den Ballungsräumen Hanau und Frankfurt stehen Unternehmen für alle darüber hinausgehenden Bedürfnisse zur Verfügung. Es stehen eine Grundschule, 3 Kindertagesstätten (davon eine in Rommelshausen) und ein Kinderhort zur Verfügung. Weiterführende Schulen befinden sich in Altenstadt, Büdingen und Nidderau.











