Goldbach-Unterafferbach
Am westlichen Fuße des Spessarts gelegen bietet Goldbach auf seinen knapp 11 km² nicht nur Wohnraum für rd. 9.700 Bürgerinnen und Bürger, sondern auch eine reizvolle Landschaft. Die Marktgemeinde besteht aus den Ortsteilen Goldbach und Unterafferbach und liegt in direkter Nähe zum Oberzentrum Aschaffenburg mit 70.000 Einwohnern. Sie gehört zur Rhein-Main Metropolregion, nach Frankfurt sind es gerade einmal 25 Fahrminuten.
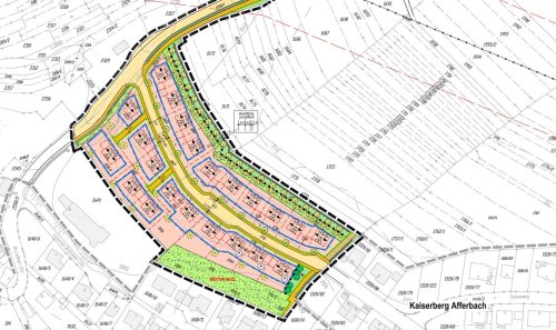
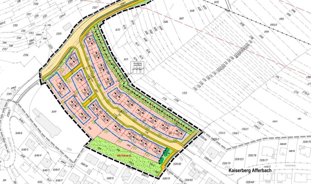
Das Baugebiet "Kaiserberg-Erweiterung" liegt im Norden des Ortsteils Unterafferbach.
Für die Betreuung von Kleinkindern stehen seit 2005 eine Kinderkrippe, ein kommunaler und vier kirchliche Kindergärten zur Verfügung. Die Grundschulkinder werden in der Mittagsbetreuung an der Grundschule bzw. in den Horteinrichtungen der Kindergärten betreut.
In Aschaffenburg und in benachbarten Orten des Landkreises stehen mehrere Gymnasien und Realschulen, FOS und BOS, sowie eine private Wirtschaftsschule zur Verfügung. Die Hochschule in Aschaffenburg, gegründet 1995 und bis 2007 Fachhochschule, expandiert kräftig und ist auch für viele Goldbacher Studienort. Im Ort selbst besteht noch eine dreizügige Grundschule und eine Mittelschule in einem Schulverbund mit vier weiteren Kooperationspartnern.







