Erlensee "Im Büchensaal"
Stadt
Die Stadt Erlensee mit den Stadtteilen Rückingen und Langendiebach hat ca. 13.000 Einwohner.
Lage/Verkehrsanbindung
Erlensee liegt im Rhein-Main-Gebiet in unmittelbarer Nähe der Kreisstadt Hanau, ca. 25 km östlich von Frankfurt entfernt. Die A45 und A66, das Hanauer Kreuz und das Langenselbolder Dreieck sind direkt an Erlensee angeschlossen. Der Flughafen Rhein-Main ist in ca. 40 Minuten zu erreichen. Nächstgelegener Eisenbahnanschluss ist der Hauptbahnhof Hanau (ICE-Bahnhof).
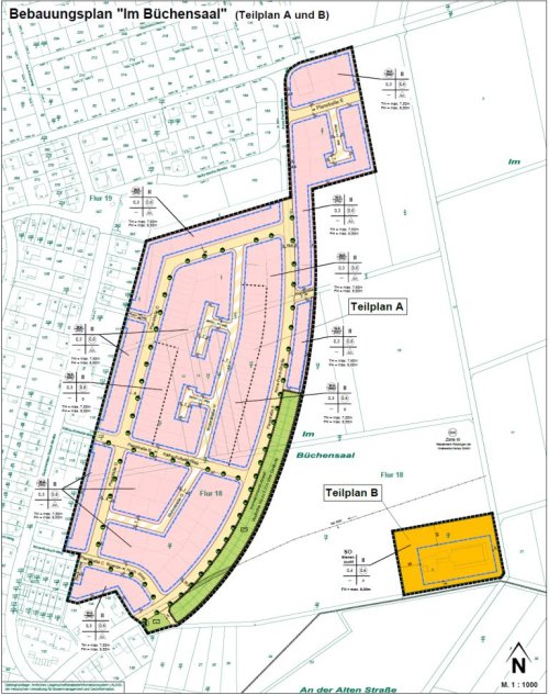
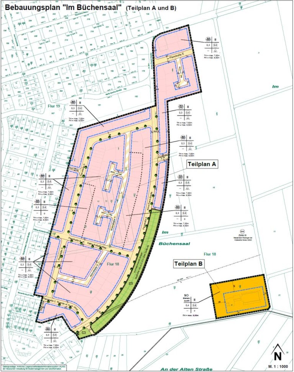
Das Baugebiet
Das Baugebiet befindet sich im Stadteil Langendiebach. Auf ca. 8 ha entstehen hier 120 Bauplätze.
Wirtschaft/Infrastruktur
In Erlensee finden sich alle Einrichtungen des täglichen Bedarfs. Es gibt 7 Kindergärten, 3 Grundschulen und eine Gesamtschule. Hortplätze werden in drei kommunalen Kitas angeboten. Über 80 Vereine für die unterschiedlichsten Interessen, Kulturveranstaltungen (Theater, Konzerte, Lesungen usw.), ein Hallenbad, zwei Mehrzweckhallen, ein Bürgerhaus, die "Wasserburg" mit Heimatmuseum, Gemeindebücherei sowie das Sportzentrum bieten ein breites Angebot für Familie, Kultur und Bildung.










